LOCAL A LOUER à ANNECY - 77 AVENUE DE GENEVE - ENSEMBLE IMMOBILIER "LE BOUTAE"
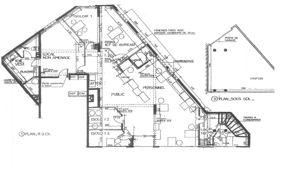
Ce local de 142 m² environ se situe en rez-de-chaussée d'un immeuble récent, sur un axe passant avec un flux de circulation important. Il est à proximité immédiate du centre-ville.
Il se compose d'un accueil, de six bureaux, d'un dégagement, d'un local technique et de sanitaires.
Un local à archives en sous-sol d'environ 26 m² est rattaché au local avec un accès direct depuis le RDC.
Possibilité d'installer une signalétique visible sur l’avenue de Genève.
Chauffage individuel gaz. Climatisation par splits.
Transports en commun et voies cyclables au pied de l’immeuble - Accès aisé échangeurs autoroutiers et zone d'activités des Glaisins.
Disponibilité immédiate
CONDITIONS DU BAIL
* LOYER MENSUEL : 3500,00 € / mois hors taxes (loyer payable par trimestre civil d’avance)
* CHARGES LOCATIVES MENSUELLES : 205,00 €
* REGIME FISCAL : T.V.A. = 20.00 %
* TAXE FONCIERE : à la charge du preneur
* DEPOT DE GARANTIE : 3 mois de loyers hors charges, hors taxes
FORME JURIDIQUE DU BAIL : à convenir
HONORAIRES COMMERCIALISATION : 12 % du loyer annuel hors taxes (à la charge du preneur) (inclus rédaction de bail)
Informations non contractuelles ne pouvant engager la société.



