LOCAL COMMERCIAL A LOUER - 50, AVENUE DE GENEVE 74000 ANNECY
Ce local de 398 m² environ se situe sur un axe passant, à deux pas de la C.C.I, de la galerie commerciale Courier et de la gare SNCF.
Le local est en parfait état d'entretien. La toiture a été rénovée et isolée. Il dispose d'une alarme.
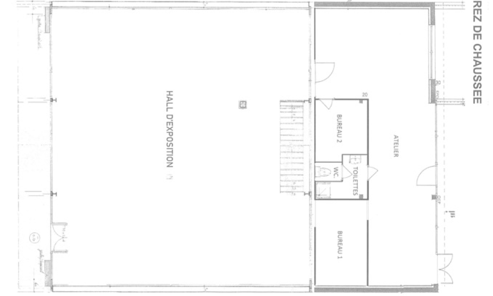
Le local se compose d'une partie au RDC de 238 m² avec un espace showroom disposant d'une vitrine sur l'avenue de Genève, un atelier, deux bureaux, sanitaires et d'une partie en sous-sol de 160 m² avec un espace showroom, deux pièces à usage de stockage ainsi que d'une chaufferie.
Un extérieur de 200m² est rattaché au local avec une rampe d'accès au showroom du sous-sol et d'une cour à usage de parking privatif.
Possibilité d'installer une signalétique visible sur l’avenue de Genève.
Chauffage individuel gaz et eau chaude cumulus.
Disponibilité immédiate
CONDITIONS DU BAIL
* LOYER MENSUEL : 2970,00 €/hors taxes (payable par trimestre civil d’avance)
* REGIME FISCAL : T.V.A = 20.00 %
* DEPOT DE GARANTIE : 3 mois de loyer hors charges, hors taxes
* TAXE FONCIERE : à la charge du preneur
FORME JURIDIQUE DU BAIL : A convenir
HONORAIRES COMMERCIALISATION : 12 % du loyer annuel hors taxes (à la charge du Preneur) (inclus frais rédaction de bail)
Informations non contractuelles ne pouvant engager la société.



