A LOUER 3P+C de 58m2 à Rumilly secteur stade _au RDC d'un ensemble immobilier.
Cet appartement bénéficie d'un balcon exposé au Sud , et d'une proximité de tous les commerces, & écoles.
Une cave, un balcon, et un séchoir sont rattachés à ce logement.
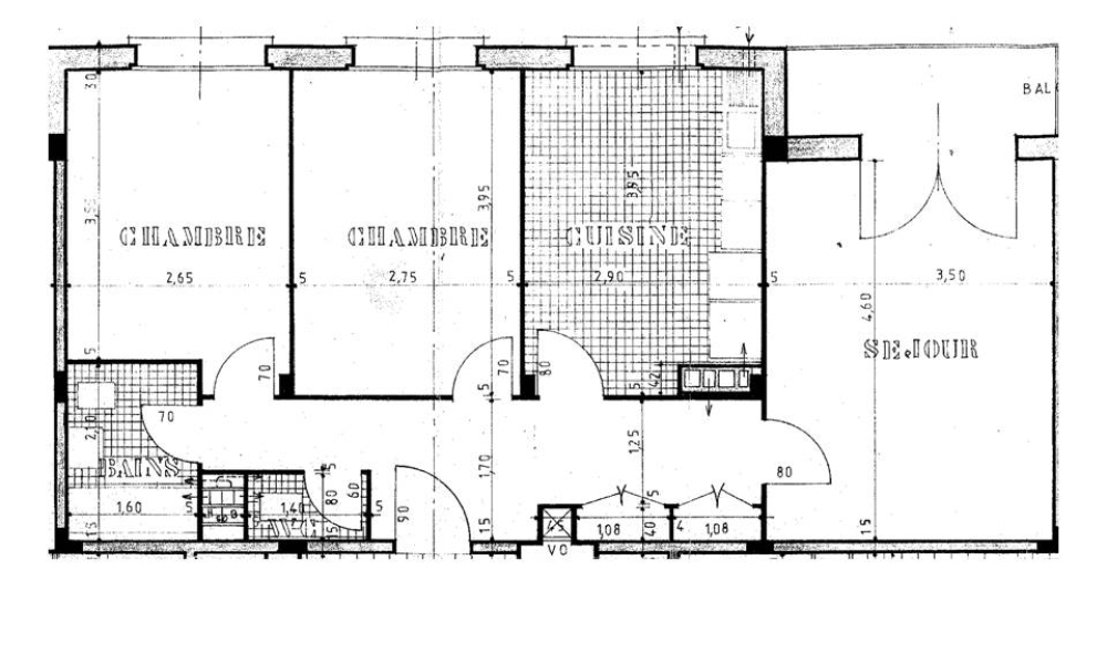
Cet appartement de type 3 exposé Ouest est composé d'une entrée, d'un séjour, d'une cuisine, de deux chambres, d'une salle de bains, d'un WC.
Le chauffage est collectif au FIOUL , l'eau chaude est individuel électrique
La provision de charge de chauffage est comprise dans les charges mensuelles.
Logement disponible de suite.
Les informations sur les risques auxquels ce bien est exposé sont disponibles sur le site Géorisques : www. georisques. gouv. fr
ⓘ Les informations sur les risques auxquels le bien est exposé sont disponibles sur le site Géorisques : www.georisques.gouv.fr
Informations non contractuelles ne pouvant engager la société.
Estimation des coûts énergétiques annuels pour le logement
Entre 2150 et 2950€ par an.
Les coûts sont estimés en fonction des caractéristiques de votre logement pour un usage standard sur 5 usages (chauffage, eau chaude sanitaire, climatisation, éclairage, auxiliaires)



