A LOUER TYPE 2 de 41.57 m² à RUMILLY en Rez de jardin d'un ensemble immobilier
Cet appartement bénéficie d'une terrasse de 51m² exposé Sud/Ouest.
Un emplacement de stationnement privatif (couvert) est rattaché à ce logement.
L'immeuble est sécurisé par un interphone dispose d'un ascenseur, d'espaces verts , d'un parking collectif avec portail automatique.
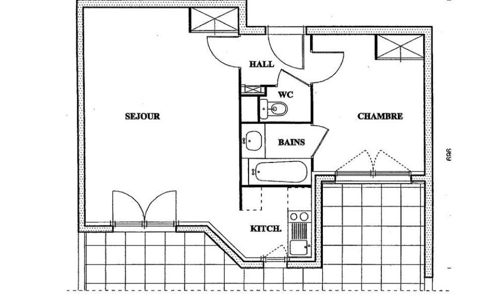
Cet appartement est composé d'un hall d'entrée, une cuisine équipée (hotte, plaque de cuisson et placards) ouverte sur le séjour, une chambre, une salle de bains, un WC. La terrasse est accessible depuis le séjour.
Chauffage et eau chaude individuels au gaz
Accès aisé aux transports en commun ( bus, gare) et à proximité des ensembles scolaires
Les informations sur les risques auxquels ce bien est exposé sont disponibles sur le site Géorisques : www. georisques. gouv. fr
ⓘ Les informations sur les risques auxquels le bien est exposé sont disponibles sur le site Géorisques : www.georisques.gouv.fr
Informations non contractuelles ne pouvant engager la société.
Estimation des coûts énergétiques annuels pour le logement
Entre 750 et 1040€ par an.
Les coûts sont estimés en fonction des caractéristiques de votre logement pour un usage standard sur 5 usages (chauffage, eau chaude sanitaire, climatisation, éclairage, auxiliaires)



