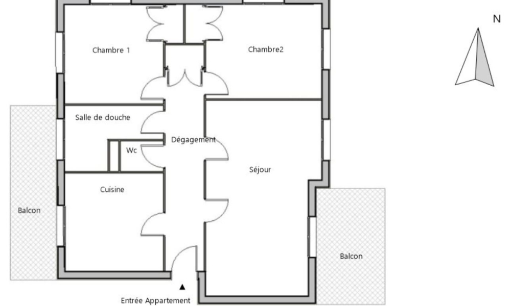
Secteur Gantin, à proximité de la gare, à louer appartement de type 3 de 88m2.<br> Il se situe au 1er étage d'un petit immeuble sécurisé et a entièrement été rénové avec soins;<br> Il dispose de 2 chambres de 12m2 et 15 m2 d'une entrée / dégagement déservant toutes les pièces de l'appartement.<br> L'immense séjour de 27m2 donne sur l'avenue Gantin avec un balcon attenant;<br> Côté cuisine , celle ci est neuve et équipée d'électroménager ( hotte + four+ plaque induction ) , elle est indépendante du séjour .<br> La salle d'eau dispose d'un meuble vasque NEUF + douche neuve.<br> Une cave aménagée sera à votre disposition et un garage peut vous être proposé à 50 m du logement au prix de 91€/mois en +.<br> Toutefois, un parking public se trouve juste en face de l'immeuble ( place des anciennes casernes).<br> Pour le chauffage et l'eau chaude : il s'agit d'une chaudière collective au fioul .<br> Ces 2 postes sont compris dans les charges estimées à 160€ comprenant également les charges d'immeuble, entretien des communs.<br> Ref- 09961/5 - Logement soumis à la GLI. Colocation non accepté - Inscription pour visites : 04 50 64 56 21
ⓘ Les informations sur les risques auxquels le bien est exposé sont disponibles sur le site Géorisques : www.georisques.gouv.fr
Informations non contractuelles ne pouvant engager la société.
Estimation des coûts énergétiques annuels pour le logement
Entre 1880 et 2610€ par an.
Les coûts sont estimés en fonction des caractéristiques de votre logement pour un usage standard sur 5 usages (chauffage, eau chaude sanitaire, climatisation, éclairage, auxiliaires)



