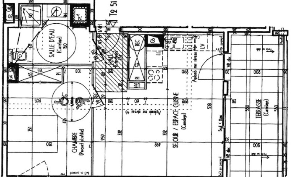
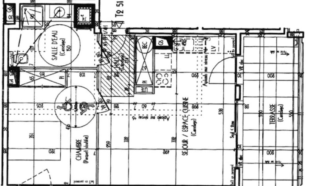
A LOUER, 2 P+C MEUBLE de 45 m² à ANNECY en 5ème étage d'un immeuble récent situé dans le quartier PARMELAN, proche des Galeries Lafayette et du lac. Il bénéficie de prestations de qualité et d'une terrasse de 11 m². Une place de parking privative en sous-sol (avec borne de recharge) est rattachée à ce logement. L'immeuble dispose d'un ascenseur, d'espaces verts, d'un local vélos, et d'un vidéophone.
Cet appartement meublé est composé d'une cuisine équipée ouverte, d'un séjour avec terrasse de 11 m², d'une chambre, d'une salle de douches/WC.
Chauffage plancher rayonnant - EC cumulus.
Emplacement idéal proche des commerces et des lignes de bus
Les informations sur les risques auxquels ce bien est exposé sont disponibles sur le site Géorisques : www. georisques. gouv. fr
ⓘ Les informations sur les risques auxquels le bien est exposé sont disponibles sur le site Géorisques : www.georisques.gouv.fr
Informations non contractuelles ne pouvant engager la société.
Estimation des coûts énergétiques annuels pour le logement
Entre 670 et 940€ par an.
Les coûts sont estimés en fonction des caractéristiques de votre logement pour un usage standard sur 5 usages (chauffage, eau chaude sanitaire, climatisation, éclairage, auxiliaires)



