A louer TYPE 3 à AIX LES BAINS - RESIDENCE LE CLOS MARLIOZ - 41B AVENUE DE MARLIOZ, au 1er étage d'une résidence neuve (2025), située à l'entrée du centre ville, à deux pas de la gare et des commerces. L'immeuble est sécurisé par un interphone, il dispose de belles prestations, d'un ascenseur et d'espaces verts.
Un garage double en sous-sol de l'immeuble est rattaché à ce bien.
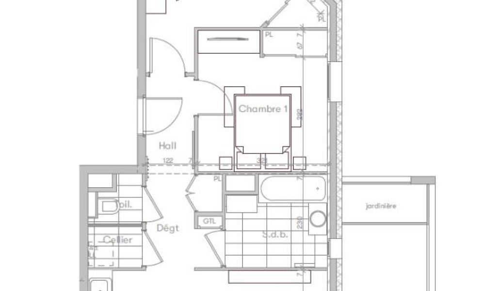
Ce TYPE 3 de 62m² bénéficie d'un grand balcon avec jardinière de 12m² exposé Sud/Ouest.
Il se compose d'une entrée avec placard, deux chambres (11m²) avec placard, une buanderie, une cuisine équipée (réfrigérateur, plaque de cuisson, four, lave vaisselle et hotte aspirante) ouverte sur un séjour de 25m², un balcon accessible depuis la baie du séjour, une salle de bains, wc.
Chauffage et eau chaude collectifs avec compteurs de décompte individuels.
Emplacement idéal proche de tous les réseaux de transports, accès aisé à l'échangeur autoroutier Aix Nord en 10 minutes, proche écoles, collège et lycée.
Les informations sur les risques auxquels ce bien est exposé sont disponibles sur le site Géorisques : www. georisques. gouv. fr
ⓘ Les informations sur les risques auxquels le bien est exposé sont disponibles sur le site Géorisques : www.georisques.gouv.fr
Informations non contractuelles ne pouvant engager la société.
Estimation des coûts énergétiques annuels pour le logement
Entre 525 et 711€ par an.
Les coûts sont estimés en fonction des caractéristiques de votre logement pour un usage standard sur 5 usages (chauffage, eau chaude sanitaire, climatisation, éclairage, auxiliaires)



